


| 物件名 | 西麻布1丁目新築一棟ビル |
|---|---|
| 所在地 | 東京都港区西麻布1丁目 |
| 交通 | 東京メトロ日比谷線「六本木」駅 徒歩6分 東京メトロ千代田線「乃木坂」駅 徒歩8分 |
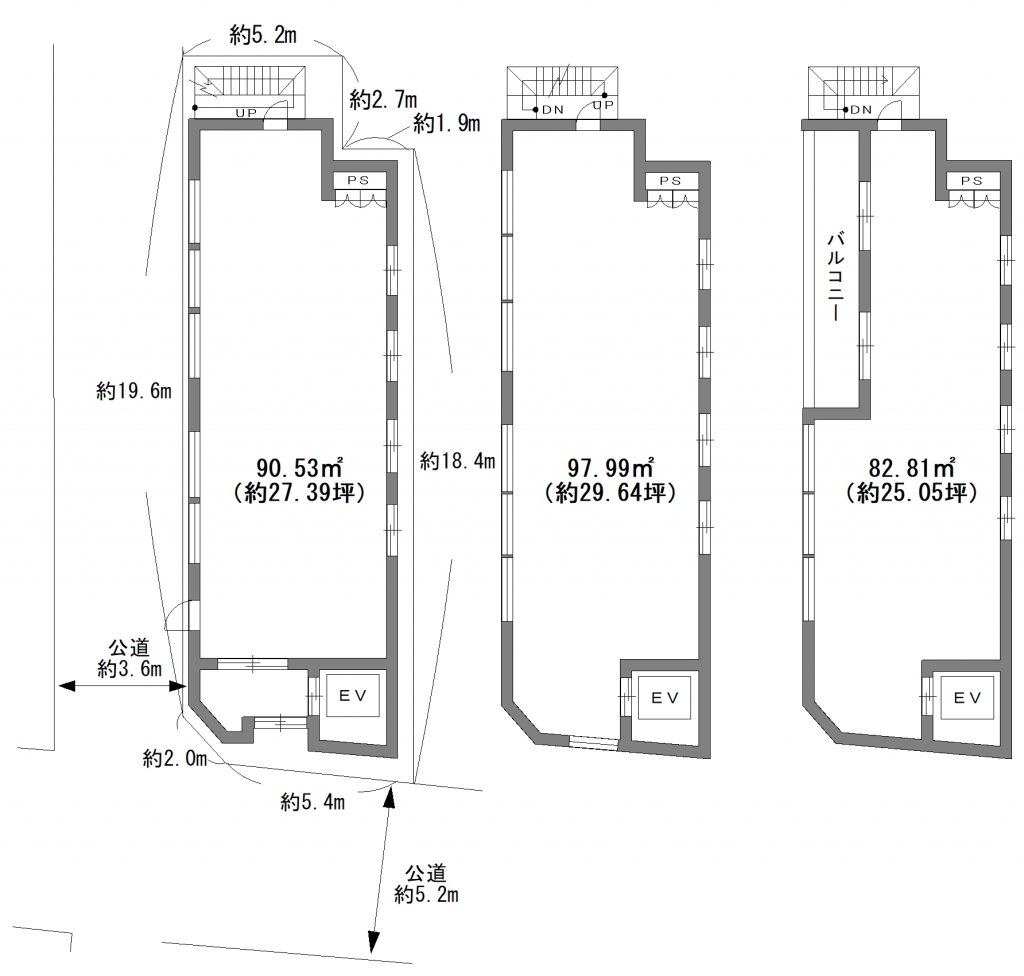
| 敷地面積 | 実測147.59㎡(約44.64坪) ※SB面積6.62㎡含む |
| 権利 | 所有権 |
| 道路 | 南側 幅員約5.2m公道に約5.4m接道 西側 幅員約3.6m公道に約19.6m接道 |
| 用途地域 | 第二種中高層住居専用地域 |
| 防火指定 | 準防火地域 |
| 建ぺい率 | 60%(80%) |
| 容積率 | 300% |
| 高度地区 | 24m第三種高度地区 |
| 区画整理 | ― |
| 建物高さ制限 | |
| 種類 | 事務所・診療所 |
| 構造 | 鉄筋コンクリート造 地上3階建 |
| 総戸数 | ― |
| 床面積 | 1階101.93㎡/2階102.71㎡/3階87.53㎡ 合計292.17㎡ |
| 竣工 | |
| 現況 | 建築中(2022年10月末竣工予定) |
| 引渡時期 | 竣工後 |
| 建築確認番号 | 第TKC22建確東6151号 令和4年3月10日 |
| 取引態様 | 売主 |
| その他 | 【法令制限】 港区まちづくり条例、港区中高層建築物の建築に係る紛争の予防と調整に関する条例、景観条例、福祉のまちづくり条例、東京と建築安全条例、ほか 【引渡】 ・用途地域による建築物の用途制限がございます。 ・建蔽率の制限緩和(角地・耐火建築物) 【賃貸する場合】 年間想定賃料・・・・26,400,000円(満室想定) 想定利回・・・・・・約3.22% |
| ポイント | ・六本木ヒルズまで 徒歩3分 ・西麻布交差点まで 徒歩3分 ・六本木交差点まで 徒歩8分 ・東京ミッドタウンまで 徒歩8分 |
一覧へ >>